Chemin des rosiers 2-4, Lausanne, 2024
Client : Echami Leman SA
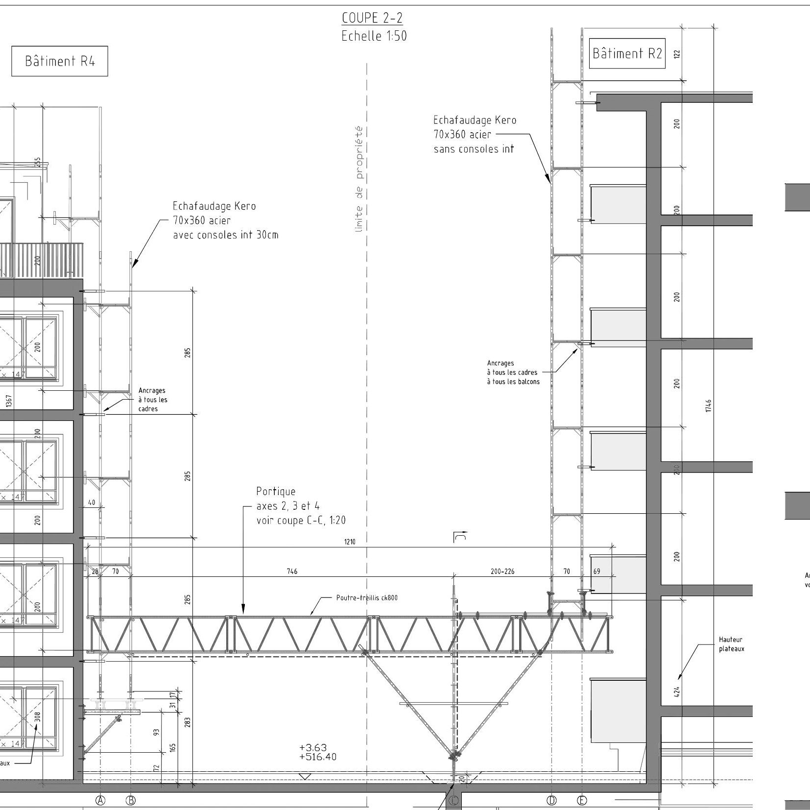
Echafaudage haut de 18m suspendu au moyen de poutres-treillis ck800 : concept, dimensionnement et établissement des plans d’exécution.







Ingénieurs
Alexandre Gay






Ingénieurs
Alexandre Gay






Ingénieurs
Alexandre Gay

Client : Echami Leman SA
Echafaudage haut de 18m suspendu au moyen de poutres-treillis ck800 : concept, dimensionnement et établissement des plans d’exécution.
Client : Rampini & Cie SA
Echafaudage et coffrage pour bordure : concept, dimensionnement et établissement des plans d’exécution.
Client : Steiner SA
Passerelle piétonne L=14.50m par-dessus le passage inférieur. 450 kg/m2. Concept, vérification statique et établissement des plans d’exécution.
Client : Küng et Associés SA
Nouvelle marquise L=73.00m. Concept, dimensionnement et établissement des plans d’ensemble, y compris détails-type.
Client : Fasel Echafaudages SA
Passerelle piétonne L=16.50m, H=10.90m par-dessus la voie de chemin de fer CFF. Vérification statique.
Client: Tobler AG
Cintre pour un nouveau pont 14.00×6.00m : concept, dimensionnement et plans d’exécution.
Client : Richard Echafaudages SA
Vérification d’un échafaudage multidirectionnel appuyé sur consoles porteuses.
Viaduc longueur 78m, hauteur 25m.
Client : Jundt Ingénieurs civils SA
Halle industrielle : vérification de la toiture existante en charpente métallique (1890m2) après le rajout de panneaux photovoltaïques.
Client : RTS
Vérification statique de la structure multidirectionnelle de type Allround.
Client : Implenia SA
Toiture provisoire avec échafaudages sans ancrages possibles dans les façades : concept et vérification statique.
Client : Losinger Marazzi SA
Concept et vérification statique des échafaudages de hauteur 82m.
Client : Losinger Marazzi SA
Concept et vérification statique d’une plateforme de travail en haut de l’atrium : dimensions 42.60 x 12.90m à une hauteur de 27m.
Client : Fasel Echafaudages SA
Vérification de la structure multidirectionnelle de type Layher composant la scène ainsi que la corolle à l’arrière. Calcul des ancrages et des lests nécessaires afin de garantir la stabilité de la structure.
Client : Fasel Echafaudages SA
Vérification statique d’une plateforme suspendue au tablier du pont, longueur 160m.
Client : Conrad Kern Ticino SA
Plateformes de travail suspendues à la charpente métallique : concept, dimensionnement et plans d’exécution.
Client : Teoxane SA
Pont de réception H=11.50m pour acheminement de machines jusqu’à un poids de 3 tonnes : concept, dimensionnement et plans d’exécution.
Client : Conrad Kern Ticino SA
Réalisation d’un rond-point par-dessus l’autoroute : dimensionnement des plateformes suspendues au caisson métallique pour le bétonnage du tablier.
Client: SIF SA
Concept et dimensionnement de l’étayage de fouille précontraint et établissement des plans. Environ 100 tonnes d’acier.
Client : Conrad Kern SA
Concept et vérification de plateformes suspendues pour la réfection du pont. Longueur 230m, surface 2940m2.
Client : Implenia Suisse SA
Appui d’un échafaudage haut de 38m sur des consoles porteuses ancrées chimiquement dans le parapet en béton.
Client: Küng et Associés SA
Halle métallique pour la nouvelle boulangerie L=38.20m, B=9.65m, H=6.60m, avec dalle mixte intermédiaire. Concept, dimensionnement et établissement des plans d’ensemble, y compris détails-type et liste d’acier.
Client : Walo Bertschinger SA
Sabots ancrés pour le vérinage du tablier du pont. Calcul des sollicitations, concept et dimensionnement des sabots, vérification des ancrages chimiques et établissement des plans d’atelier.
Client : Orllati Géothermie SA
Vérification de la sécurité structurale des tubes conducteurs ROR660 d’une longueur de 51m lors de leur mise en place ainsi que durant leur exploitation.
Client : Losinger-Marazzi SA
Concept et vérification d’un échafaudage de façade sans contreventements. Hauteur totale, y compris surélévation : H=31m, L=87m
Client : Orllati SA
Vérification de la sécurité structurale d’un mouton pour effectuer les essais dynamiques sur pieux.
Client: ELMA échafaudages SA
Passerelle de portée L=26.00m entre les deux bâtiments de la gare. Concept, dimensionnement et établissement des plans d’atelier.
Client : Implenia Suisse SA
Portique métallique avec poutre de roulement et palan 3 tonnes, pour l’acheminement des palettes à une hauteur de 20m. Vérification statique et concept de renforcement.
Client : Echami Léman SA
Vérification statique d’une suspension à l’aide de profilés HEB en porte-à-faux pour soutenir un échafaudage d’une hauteur de 25m.
Client : A. Flückiger, Ingénierie acier
Etablissement des plans de renforcement.
Client : Implenia Suisse SA
Vérification statique d’échafaudages H=46m pour la réfection de deux cheminées des SIG.
Client : Küng & Associés SA
Charpente métallique L=16.30m, B=5.30m, H=5.50m pour accueillir une base-vie de containers (poids 23 tonnes) et palissade autoportante L=42m, H=5.50m. Concept, dimensionnement et établissement des plans d’atelier.
Client : La Transfo Sàrl
Cintre pour réfection de parapets, L=33m : système de poutres-treillis suspendues au tablier : concept, dimensionnement et établissement des plans d’exécution.
Client : Halter SA
Structure métallique en porte-à-faux pour soutenir un échafaudage d’une hauteur de 60m : concept, dimensionnement et établissement des plans.
Client: Conrad Kern AG
Cintre de pont, portée L=20.40m : poutres triangulées de type Integral : vérification des attaches.
Client: Richard Echafaudages SA
Vérification statique d’une plateforme 200 kg/m2, suspendue sous le tablier du pont avec garde-corps h=4.00m, pour la réfection des parapets.
Client : Echami Echafaudages SA
Passerelle piétonne pour public (400kg/m2), L=18m, B=1.50m, posée sur consoles porteuses.
Client: Küng & Associés SA
Halle métallique L=45m, B=39m, H=9.50m. Concept et dimensionnement de la charpente métallique, y compris détails-type et pont roulant 3.2 to. Aucuns contreventements longitudinaux.
Client: Fasel Echafaudages SA
Vérification statique d’une plateforme 200 kg/m2, suspendue sous le tablier du pont avec garde-corps h=4.00m, pour la réfection des parapets.
Client: Echami Echafaudages SA
Vérification statique de 16 ponts de réception superposés sur une hauteur de 60m et de la toiture provisoire.
Client : SIF SA
Vérification de béquilles L=14.60m : vérification de la stabilité et dimensionnement de l’attache (plaques frontales boulonnées) au droit du vérin de mise en précontrainte.
Client: Conrad Kern AG
Cintre de pont, portée L=14m : vérification de l’introduction des efforts au droit des attaches entre profilés HEB.
Client : Küng & Associés SA
Etayage de fouille pour retenir une paroi de palplanches. Dimensionnement des étais, des longrines et établissement des plans d’ensemble et de détails.
Client : Küng et Associés SA
Paroi CFF L=172m, H=14.25m. Etablissement du concept, dimensionnement et établissement des plans d’exécution.
Client : Küng & Associés SA
Etayage de fouille pour retenir une paroi de pieux sécants. Profondeur de la fouille 20.50m. Tonnage de l’étayage 162 tonnes. Précontrainte de 1500 à 3500 kN. Etablissement du concept, dimensionnement des étais, longrines, filières, chandelles et tous les détails.
Client : Rampini & Cie SA
Passerelle piétonne : concept et prédimensionnement du système d’étayage et coffrage
Client : Fasel SA
Toiture provisoire largeur 26.45m, longueur 18.00m, hauteur 24.00m : vérification de la stabilité d’ensemble, de la résistance et de l’aptitude au service.
Client : CSC construction SA
Plateforme suspendue faisant office de coffrage de parapets. Concept, dimensionnement et plans d’exécution.
Client : Küng et Associés SA
Halle métallique L=77m, B=13.50m, H=9m. Concept et dimensionnement de la charpente métallique, établissement des plans et contrôles de l’exécution. Poids total environ 60 tonnes
Client : Frutiger SA Vaud
Portique de protection sur voie CFF pour permettre le passage avec la grue. Largeur 14.50m, hauteur 11.20m : concept, dimensionnement, note de calcul et réalisation des plans d’exécution.
Client : Grisoni Zaugg SA
Coffrages pour tunnel SPS : établissement de la méthodologie d’exécution, optimisation des méthodes et choix des matériaux.
Client : Induni & Cie SA
Système de coffrage des balcons appuyé sur des consoles porteuses : concept, dimensionnement et réalisation des plans d’exécution.
Client : Fasel SA
Vérification de la stabilité d’un échafaudage haubané d’une hauteur de 40m. L’échafaudage ne pouvait pas être ancré dans la cheminée existante.
Client : Echami SA
Concept, plans, dimensionnement d’un chariot de travail roulant sur la dalle supérieure du Pont Val d’Arve. Chariot longueur L=10.00m, hauteur H=18.80m
Client: VonRo SA
Concept et vérification statique d’une plateforme suspendue à la toiture de la halle, ainsi qu’établissement d’un mode opératoire de montage. Surface env. 4000m2, hauteur H=13.00m.
Client : SIF Groutbor SA
Concept et dimensionnement de l’étayage de fouille et établissement des plans.
Client : Marcade
Contrôle des charges suspendues à la structure des dômes.
Client : Werner Brönnimann SA
Concept et dimensionnement de l’étayage de fouille, établissement des plans et suivi des travaux de montage.
Client : Küng et Associés SA
Concept et dimensionnement de l’étayage de fouille précontraint, établissement des plans et contrôles de l’exécution. Poids total environ 900 tonnes.
Client : Serrurerie 2000 SA
Vérification statique du renforcement d’un garde-corps.
Client : Perret Gentil + Rey et Associés SA
Direction locale des travaux pour la réalisation de la nouvelle gare : organisation et suivi des travaux de génie civil ainsi que travaux ferroviaires, métrés, direction des séances de chantier et établissement des procès-verbaux.
Client : Perret Gentil + Rey et Associés SA
Direction locale des travaux pour la réalisation de la nouvelle gare : organisation et suivi des travaux de génie civil ainsi que travaux ferroviaires, métrés, direction des séances de chantier et établissement des procès-verbaux.
Client : De Cérenville SA
Dimensionnement de l’étayage de fouille précontraint, établissement des plans et contrôles de l’exécution. Appui de l’étayage sur un bâtiment adjacent.
Client : Losinger Marazzi SA
Concept et vérification statique de la suspension d’un échafaudage d’une hauteur de 24m.
Client : VonRo SA
Vérification statique d’un échafaudage et d’une toiture provisoire appuyés sur des consoles porteuses.
Client : Forasol SA – 2017
Concept et dimensionnement d’une poutre pour des essais de compression sur pieux. Force d’essai Nk = 4500 kN, portée L = 6.74m.
Client : SIF Groutbor SA
Concept et dimensionnement de l’étayage de fouille et établissement des plans.
Client : Steiner SA
Dans le cadre d’une surélévation d’un immeuble, concept et vérification statique d’un échafaudage en porte-à-faux à une hauteur de 22m.
Client : Marti Spezial Tiefbau
Concept et dimensionnement de l’étayage de fouille
Client : Implenia SA
Concept et dimensionnement de la charpente métallique provisoire soutenant la passerelle piétons ainsi que les plateformes de travail. La charpente ne peut pas être ancrée dans l’ouvrage existant classé → tirants précontraints traversant les arches du pont. Total 70 tonnes.
Client : De Cérenville SA
Dimensionnement de l’étayage de fouille précontraint, établissement des plans et contrôles de l’exécution.
Client : Losinger Marazzi SA
Vérification statique d’un échafaudage en porte-à-faux et contrôle de l’exécution.
Client : Implenia SA
Concept et dimensionnement du nœud spécial entre le tube d’étayage et les 2 bracons.
Client : Alpiq SA
Concept et vérification statique d’un pont de réception pour une cuve de 7000 kg ainsi que des fixations pour lignes de vie.
Losinger Marazzi SA
Vérification statique du monte-charge et contrôle de l’exécution.
Client : Perret Gentil + Rey et Associés SA
Direction locale des travaux pour la réfection des voies 2 et 3, longueur 500m : organisation et suivi des travaux de génie civil ainsi que travaux ferroviaires, métrés, direction des séances de chantier et établissement des procès-verbaux.
Client : De Cérenville SA
Dimensionnement de l’étayage de fouille précontraint (environ 450 tonnes) et contrôles de l’exécution.
Client : Zwahlen & Mayr SA
Dimensionnement des nœuds spéciaux de la charpente métallique : assemblages boulonnées, soudures, introduction des forces.
Toute mon enfance, j’ai joué aux Legos, probablement des milliers d’heures. Ce faisant, je ne savais pas que là commençait mon apprentissage de l’étude de structures.
Diplômé de l’EPFL génie rural en 1995, j’ai travaillé jusqu’en 2013 pour des entreprises spécialisées dans le domaine des coffrages, étayages et échafaudages (Rauh Betonschalungen AG et Conrad Kern AG).
J’ai ensuite ouvert mon propre bureau d’ingénieur le 17.04.2013 à Lausanne. Installé maintenant au centre de Morges, j’étudie des projets de structures métalliques : concept, dimensionnement, établissement de plans et contrôle sur les chantiers.
Mon activité s’oriente principalement vers des structures provisoires : portiques, ponts de réceptions, plateformes suspendues, passerelles provisoires, monte-charges, chariots de travail, toitures provisoires, événementiel, parois de protection CFF, étayages de fouille, étayages verticaux, cintres et coffrages spéciaux.
Cependant, il m’arrive aussi de réaliser des projets définitifs : halles métalliques, ponts roulants, marquises et garde-corps.
Mes clients sont des entreprises de construction et des bureaux d’ingénieur.
Je travaille sur des projets qui sont en général situés sur l’arc lémanique mais il m’arrive parfois qu’on me confie des mandats pour des chantiers plus éloignés : Fribourg, Berne, Zürich.

Adresse postale :
Si vous désirez nous contacter, vous pouvez nous appeler au numéro ci-dessous :